Prvorepubliková vila v Praze se 3 bytovými jednotkami a ateliérem

Praha, Střešovice

Minimální Cena

80 000 000 Kč

Termín pro předložení
cenové nabídky
05.12.2025 v 12:00
contact_person_photo

Ing. Petr Procházka

Manažer prodeje

+420 605 060 000

prochazka@oportys.com

Popis příležitosti

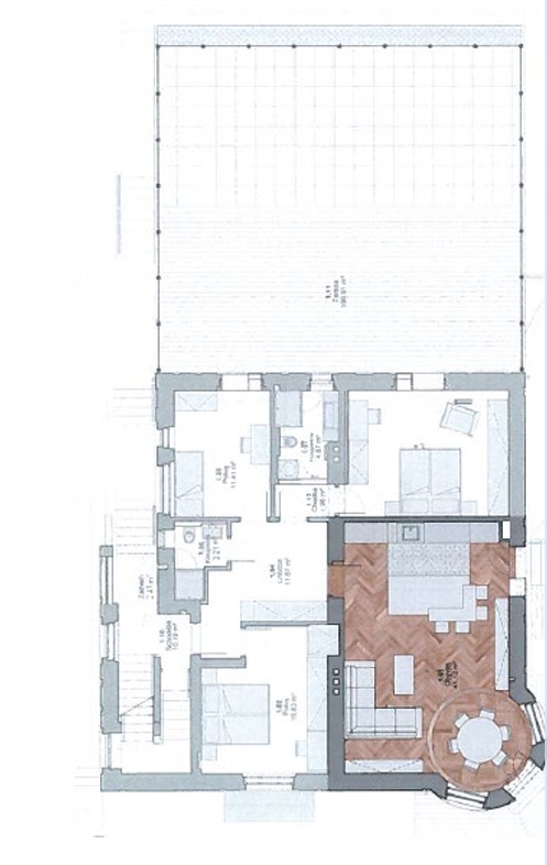
Předmětem prodeje je čtyřpodlažní prvorepubliková vila s obytným podkrovím (mezonet) a navazující nedokončenou přístavbou, o celkové užitné ploše 509 m², situovaná v klidné okrajové části Prahy – Střešovicích. Pozemek o celkové výměře 985 m2.

Stav zapsaný v katastru nemovitostí neodpovídá skutečnému stavu. Stavba má 4 nadzemní podlaží, stavebními úpravami vznikly 3 byty, v 1. NP se nachází byt o velikosti 4+kk, ve 2. NP se nachází byt o velikosti 4+kk a v podkroví (3. a 4. NP) se nachází mezonetový být o velikosti 4+kk. Bylo předloženo prohlášení vlastníka, dle kterého je stavba rozdělená na jednotky a obsahuje 4 bytové a 2 jiné nebytové prostory, což neodpovídá skutečnému provedení stavby, jednotka č. 644/1, která by měla sloužit pro krátkodobé ubytování, by se měla nacházet v přístavbě, která není provedena. V současnosti se ve stavbě nacházejí tedy BJ č. 644/2, 644/3, 644/4 a NBJ č. 644/5 a 644/6, kterými jsou současné prostory nazvané Domovní vybavení a Sklepní kóje. Stavební úpravy nejsou dokončené, jednotky jsou v hrubém stavu, bez provedených vnitřních omítek, nášlapných vrstev podlah a bez zařizovacích předmětů kuchyní a koupelen.

Dispozice nemovitosti: 

1.PP (116,5 m²) se dle projektové dokumentace bude nacházet:

  • 3x pobytová místnost
  • 2x koupelna
  • technické místnosti
  • domovní vybavení
  • sklepní kóje
  • chodba a schodiště
  • nebytová jednotka (ateliér)
  • WC
  • pobytový prostor

1.NP (118 m² + 109 m² terasa):

  • obývací pokoj + KK
  • 3x pokoj
  • 2x koupelna
  • terasa

2.NP (119 m² + terasa 2,27 m2):

  • obývací pokoj + KK
  • 3x pokoj
  • 2x koupelna
  • sklad
  • terasa

Podkroví 3.NP a 4.NP – mezonet (155 m²):

  • obývací pokoj + KK
  • 3x pokoj
  • 2x koupelna
  • komora
  • půda

Střešovice jsou městská čtvrť v Praze 6, nacházející se na západě města mezi Dejvicemi, Hradčany, Břevnovem a Vokovicemi. Jsou rozděleny Střešovickou ulicí, která propojuje část Ořechovky s Břevnovem. Ve čtvrti je dobrá dopravní dostupnost – vede tudy tramvajová trať od stanice Střešovická vozovna až k Petřínům. Zastávky v oblasti zahrnují mimo jiné Sibeliovu, Ořechovku, Vojenskou nemocnici a Větrník.

Do Střešovic zajíždějí také linky metra A (stanice Petřiny a Bořislavka) s návazností na městské autobusy. Autobusy spojují čtvrť s letištěm, Zličínem, Novým Smíchovem i Stodůlkami. Díky tomu nabízí Střešovice výborné spojení do centra i dalších částí Prahy.

 

Cenové nabídky musí být doručeny v listinné podobě, v řádně zapečetěné obálce označené nápisem „RD Praha, Střešovice – neotevírat“, na adresu sídla Oportys a.s., Olomoucká 3419/7, 618 00 Brno, nejpozději do 5. 12. 2025 do 12:00 hodin.

Za rozhodující se považuje datum doručení cenové nabídky, nikoliv datum jejího odeslání.

Kupní cena bude uhrazena do 45 dnů ode dne uzavření odpovídající smlouvy o kupní smlouvě budoucí.

Zprostředkovatel
Oportys a.s.
Olomoucká 3419/7, 618 00 Brno, Czech Republic
IČO : 29213177

Hledáte nebo nabízíte konkrétní příležitost?

Zajímají Vás podrobnosti, chcete začít dražit majetek nebo jste jen nenašli to, co hledáte? Zanechte nám Vaši e-mailovou adresu nebo telefonní číslo a členové našeho týmu Vás budou během příštího pracovního dne kontaktovat.