Soubor pozemků o rozloze 2193 m2 , Žihobce
Žihobce
Orientační Cena
490 000 Kč
Ing. Petr Procházka
Manažer prodeje
+420 605 060 000
prochazka@oportys.com
Popis příležitosti
Předmětem prodeje je soubor pozemků, které se nachází v severní části obce Žihobce v prostorách bývalého zemědělského areálu. Celková rozloha pozemků je 2 193 m2.
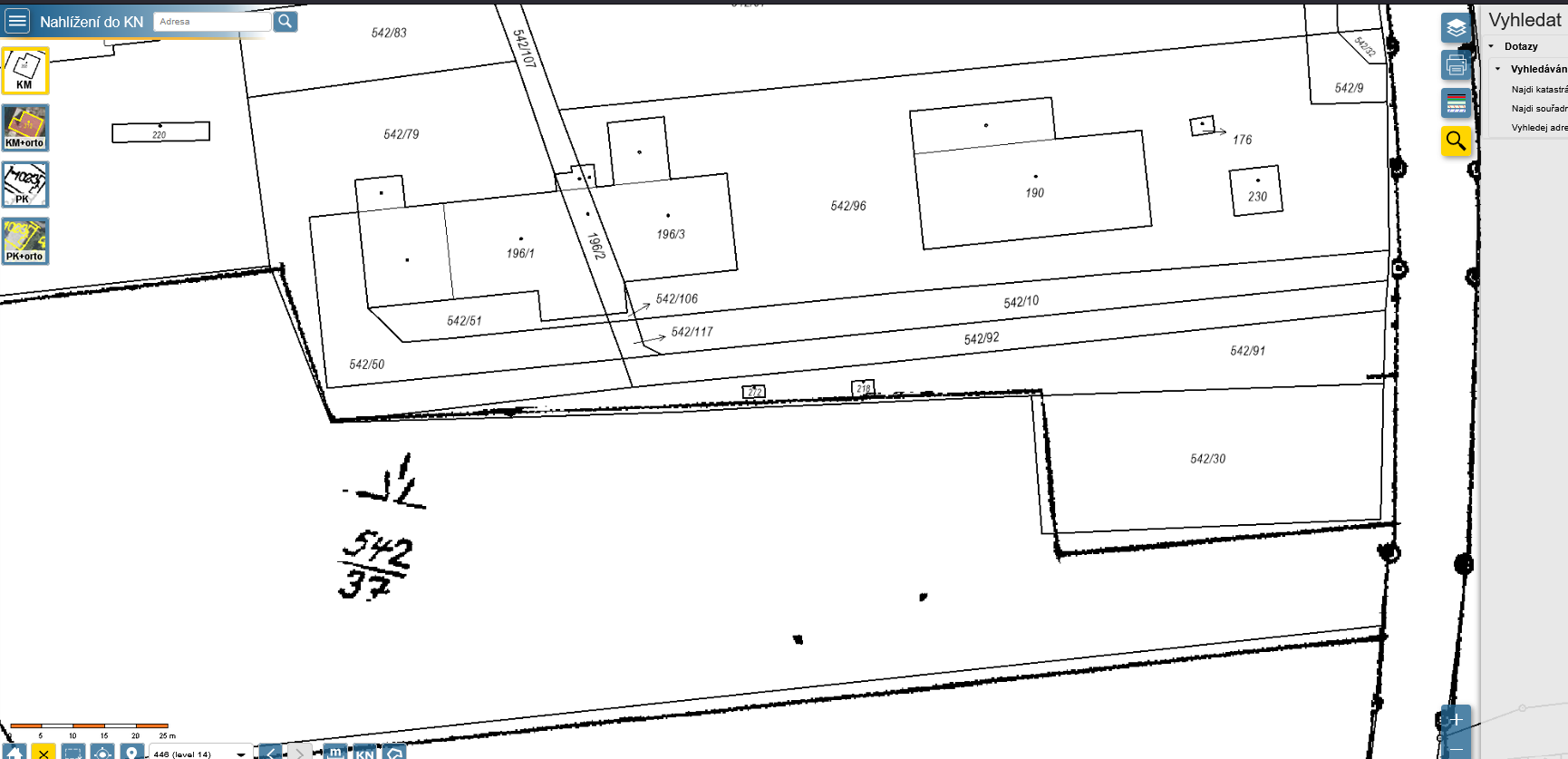
Pozemek parc. č. st. 218 o výměře 9 m2, je evidován v katastru nemovitostí jako zastavěná plocha a nádvoří. Na pozemku stojí stavba bez č.p. /č.ev. stavba technického vybavení. Stavba je ve vlastnictví jiného subjektu a není předmětem ocenění (parc. č. 272, LV 428).
Pozemek parc. č. 542/30 o výměře 1 190 m2 je evidovaný v katastru nemovitostí jako ostatní plocha, způsob využití jiná plocha. Podle platného územního plánu je pozemek regulován jako VZ-plochy zemědělské- plochy staveb a zařízení.
Pozemek parc. č. 542/91 o výměře 994 m2 je evidovaný v katastru nemovitostí jako ostatní plocha, způsob využití manipulační plocha. Pozemek nepravidelného tvaru tvoří funkční celek s nemovitostmi v areálu pod společným oplocením.
Podle platného územního plánu jsou pozemky regulovány jak VZ- plochy zemědělské – plochy staveb a zařízení. Obec Žihobce se nachází cca 8 km východně od Sušice, kde je veškerá občanská vybavenost. V obci je obchod s potravinami, pošta, základní a mateřská škola. V obci je zastávka autobusových spojů. Lokalita se zanedbatelným nebezpečím výskytu záplav.